Wilsonville, 97070
2 Bed
3 Bath
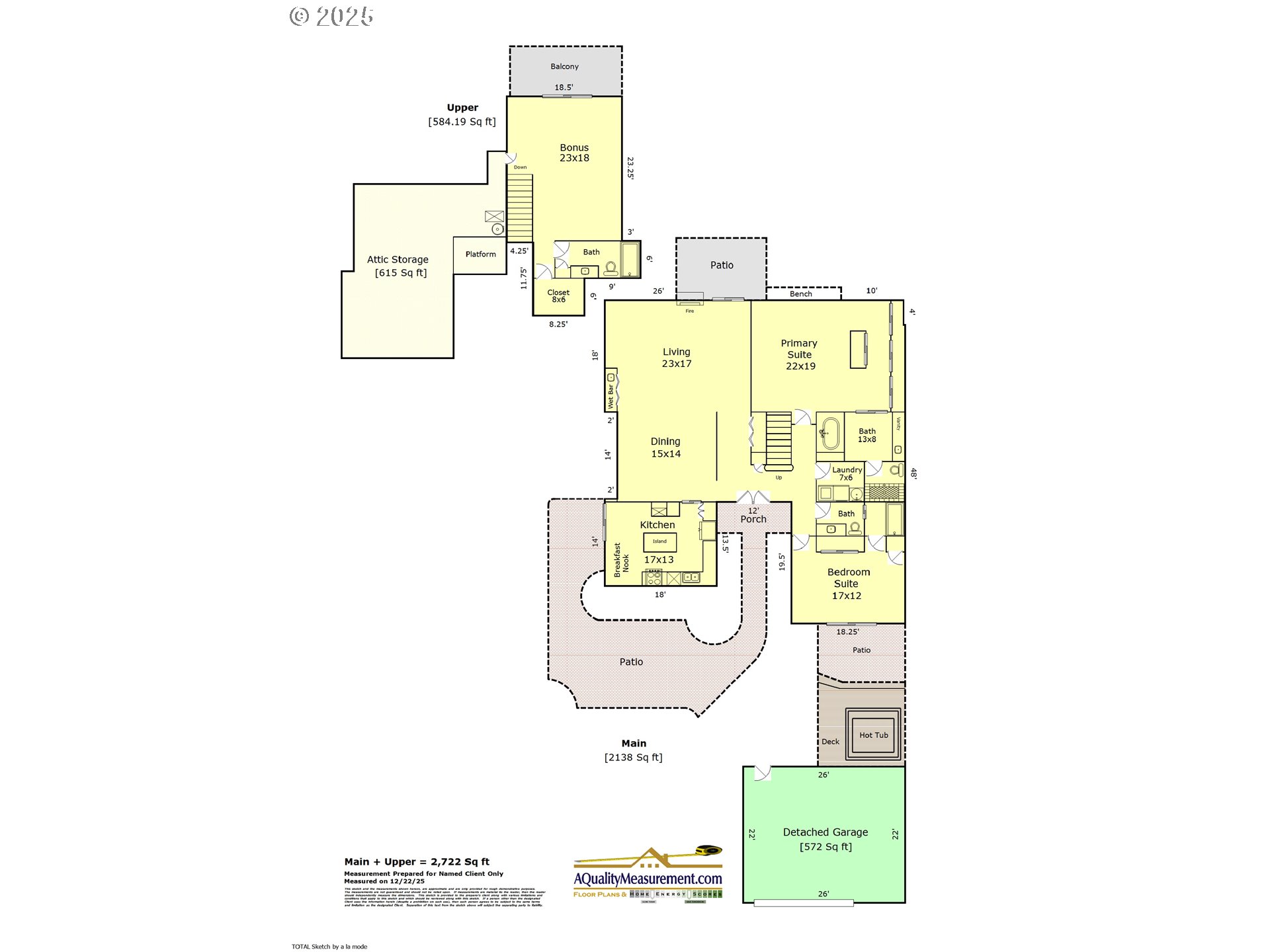
2722 SqFt
0 DOM
Built: 1981
$1,025,000
$1025000
2 Bed
3 Bath
2722 SqFt
0 DOM
Built: 1981
Real Estate Agent
(503) 336-1515Quality-built home ideally set on the Charbonneau golf course, offering a rare combination of privacy and serene fairway views. An expansive covered front patio with water feature creates a perfect space for entertaining or quiet relaxation. Inside, generous living spaces and a vaulted living room deliver a light, open feel. The main-level primary suite adds comfort and convenience, while an upstairs bonus room with full bath and walk-in closet offers flexible use as a guest suite, office, or gym. Enjoy a resort-style community with walking paths, community center, pool and gym. Optional private golf, tennis, pickleball and boat/RV storage memberships available. Additional 615 sqft of unfinished attic space not included in sqft.
Listing Provided Courtesy of Jennifer Noble, Windermere Realty Trust
209916570
Attached
0 DOM
2
3
2722
1981
Clackamas
00823853
Eccles
Baker Prairie
Canby
Residential
Attached
2462 CHARBONNEAU #9 LT Q9
Listing Provided Courtesy of Jennifer Noble, Windermere Realty Trust
Mohan Realty Group data last checked: Jan 12, 2026 16:24 | Listing last modified Jan 12, 2026 10:24,
Source:
584
2138
0
2722
A Quality
2722
1/Gas
2
3
0
3
Composition
2, Detached
Traditional
Driveway,OffStreet
2
1981
No
LapSiding
CrawlSpace
CrawlSpace
Management, PartyRoom
Fireplace, SlidingDoors
BuiltinRange, Dishwasher, Disposal, DoubleOven, FreeStandingGasRange, FreeStandingRefrigerator, GasApplian
CeilingFan, Granite, HardwoodFloors, SolarTube, TileFloor, VaultedCeiling, WalltoWallCarpet
CoveredPatio, Fenced, Garden, Patio, RVHookup, WaterFeature
MainFloorBedroomBath, UtilityRoomOnMain
CentralAir
Gas
ForcedAir
PublicSewer
Gas
Gas
8724.38
1
364 / Month
124 / Month
Cash,Conventional
01-12-2026
No
No
0
0
Cash,Conventional
$1,025,000
$1,025,000
Jan 12, 2026 10:24
Listing courtesy of Windermere Realty Trust.
The content relating to real estate for sale on this site comes in part from the IDX program of the RMLS of Portland, Oregon.
Real Estate listings held by brokerage firms other than this firm are marked with the RMLS logo, and
detailed information about these properties include the name of the listing's broker.
Listing content is copyright © 2019 RMLS of Portland, Oregon.
All information provided is deemed reliable but is not guaranteed and should be independently verified.
Mohan Realty Group data last checked: Jan 12, 2026 16:24 | Listing last modified Jan 12, 2026 10:24.
Some properties which appear for sale on this web site may subsequently have sold or may no longer be available.
Real Estate Agent
(503) 336-1515Quality-built home ideally set on the Charbonneau golf course, offering a rare combination of privacy and serene fairway views. An expansive covered front patio with water feature creates a perfect space for entertaining or quiet relaxation. Inside, generous living spaces and a vaulted living room deliver a light, open feel. The main-level primary suite adds comfort and convenience, while an upstairs bonus room with full bath and walk-in closet offers flexible use as a guest suite, office, or gym. Enjoy a resort-style community with walking paths, community center, pool and gym. Optional private golf, tennis, pickleball and boat/RV storage memberships available. Additional 615 sqft of unfinished attic space not included in sqft.