765 Cottage

Brookings, 97415

  • Bed

  • Bath

  • 4513 SqFt

  • 1 DOM

  • Built: 2003

  • Status: Active

$883,000

X

765 Cottage

Brookings 97415

$883000

  • Bed

  • Bath

  • 4513 SqFt

  • 1 DOM

  • Built: 2003

  • Status: Active

Mohanraj Rajendran

Real Estate Agent

(503) 336-1515

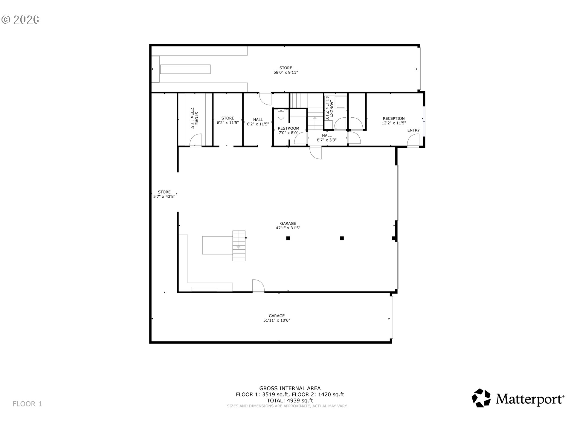
A fantastic and rare opportunity to acquire a centrally located warehouse and shop property just off Highway 101. This versatile commercial building offers approximately 4,500 square feet and is well-suited for a wide range of business uses. There is a modest living area and a full bath upstairs. The layout includes a dedicated office, two truck bays, and additional office space and storage on the second floor, providing flexibility for operations, inventory, and administrative needs. The design supports efficient workflow while allowing room for growth or customization. A great opportunity if you also need a vast parking area. Properties of this type and location are seldom available. Buyers are encouraged to verify square footage and confirm allowable uses directly with the City of Brookings. Please inquire for additional information and ask to see the 3D tour.

-->

Similar Properties

$379,000

  • Bed

  • Bath

  • 1500 SqFt

  • 16 DOM

  • 221 KING ST, Brookings, 97415

$169,000

  • Bed

  • Bath

  • 0 SqFt

  • 40 DOM

  • 531 HEMLOCK ST, Brookings, 97415

$825,000

  • Bed

  • Bath

  • 3276 SqFt

  • 181 DOM

  • 295 KING ST, Brookings, 97415

$1,000

  • Bed

  • Bath

  • 0 SqFt

  • 209 DOM

  • 0 Hwy 101 APN R14733 RD, Brookings, 97415