Salem, 97302
3 Bed
2 Bath
1184 SqFt
1 DOM
Built: 1955
$389,900
$389900
3 Bed
2 Bath
1184 SqFt
1 DOM
Built: 1955
Open House
Real Estate Agent
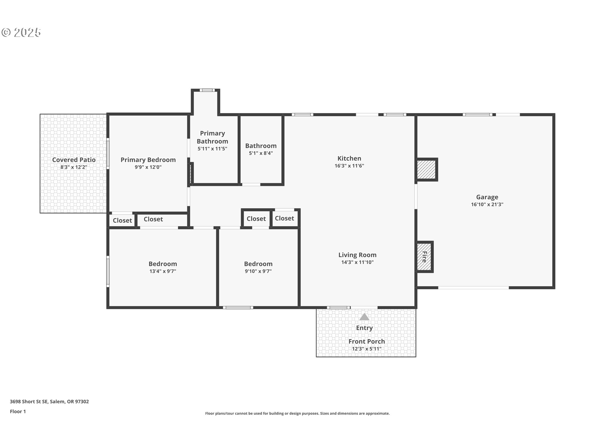
(503) 336-1515Beautifully updated single level 3 bedroom, 2 bathroom home in desirable South Salem. This move in ready property has been thoughtfully updated from top to bottom, offering peace of mind and modern finishes throughout. Recent improvements include a new roof, new gutters, new vinyl double pane windows, new interior and exterior paint, new flooring throughout, new interior doors, and updated fixtures. The kitchen has been fully refreshed with new shaker cabinets, granite countertops, and new stainless steel appliances, creating a bright and functional space for everyday living. Additionally, there is a newer electrical panel (2024) and an electric fireplace that adds warmth and ambiance to the living room. Outside, enjoy a fully fenced yard and a covered patio, ideal for entertaining, relaxing, or pets. All of this on one level for easy living and long term comfort. Conveniently located near schools, shopping, parks, and downtown Salem, this home offers the perfect blend of updates, functionality, and location.
Listing Provided Courtesy of Mark Shadrin, Berkshire Hathaway HomeServices Real Estate Profes
106731549
SingleFamilyResidence
1 DOM
3
6098.4 SqFt
2
1184
1955
RS
Marion
582930
Morningside
Leslie
South Salem
Residential
SingleFamilyResidence
MORNINGSIDE ANNEX, BLOCK 2, LOT 17, ACRES 0.138
Listing Provided Courtesy of Mark Shadrin, Berkshire Hathaway HomeServices Real Estate Profes
Mohan Realty Group data last checked: Dec 17, 2025 20:28 | Listing last modified Dec 16, 2025 13:13,
Source:
Sat, Dec 20th, 11AM to 2PM
0
1184
0
1184
County
1184
1/Gas
3
2
0
2
Composition
1, Attached
Stories1,Ranch
Secured
1
1955
No
ShingleSiding, WoodSiding
CrawlSpace
CrawlSpace
ConcretePerimeter
DoublePaneWindows,Vi
CeilingFan, Fireplace, LivingRoomDiningRoomCombo
BuiltinRange, Dishwasher, FreeStandingRange, Granite, StainlessSteelAppliance
CeilingFan, Granite, LuxuryVinylPlank, VaultedCeiling
CoveredPatio, Fenced, Patio, Porch
AccessibleEntrance, GarageonMain, GroundLevel, MainFloorBedroomBath, OneLevel
Electricity
Zoned
PublicSewer
Electricity
Electricity
2300
0
Cash,Conventional,FHA,VALoan
12-16-2025
No
No
1
1
Cash,Conventional,FHA,VALoan
$389,900
$389,900
Dec 16, 2025 13:13
Listing courtesy of Berkshire Hathaway HomeServices Real Estate Profes.
The content relating to real estate for sale on this site comes in part from the IDX program of the RMLS of Portland, Oregon.
Real Estate listings held by brokerage firms other than this firm are marked with the RMLS logo, and
detailed information about these properties include the name of the listing's broker.
Listing content is copyright © 2019 RMLS of Portland, Oregon.
All information provided is deemed reliable but is not guaranteed and should be independently verified.
Mohan Realty Group data last checked: Dec 17, 2025 20:28 | Listing last modified Dec 16, 2025 13:13.
Some properties which appear for sale on this web site may subsequently have sold or may no longer be available.
Real Estate Agent
(503) 336-1515Beautifully updated single level 3 bedroom, 2 bathroom home in desirable South Salem. This move in ready property has been thoughtfully updated from top to bottom, offering peace of mind and modern finishes throughout. Recent improvements include a new roof, new gutters, new vinyl double pane windows, new interior and exterior paint, new flooring throughout, new interior doors, and updated fixtures. The kitchen has been fully refreshed with new shaker cabinets, granite countertops, and new stainless steel appliances, creating a bright and functional space for everyday living. Additionally, there is a newer electrical panel (2024) and an electric fireplace that adds warmth and ambiance to the living room. Outside, enjoy a fully fenced yard and a covered patio, ideal for entertaining, relaxing, or pets. All of this on one level for easy living and long term comfort. Conveniently located near schools, shopping, parks, and downtown Salem, this home offers the perfect blend of updates, functionality, and location.