Portland, 97229
3 Bed
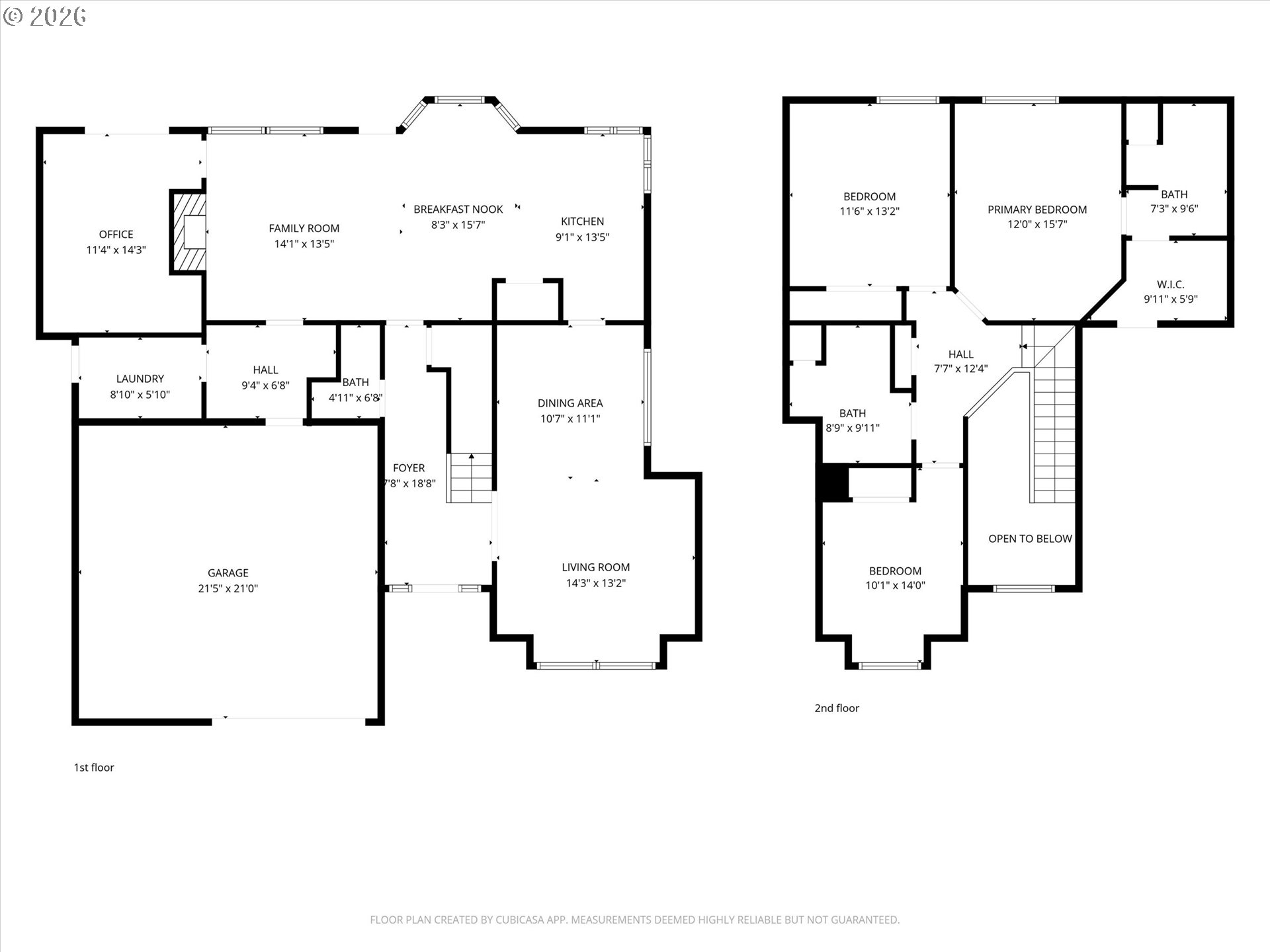
2.5 Bath
2188 SqFt
0 DOM
Built: 1988
$649,900
$649900
3 Bed
2.5 Bath
2188 SqFt
0 DOM
Built: 1988
Real Estate Agent
(503) 336-1515Showcasing timeless architecture, this home features a livable design and a seamless connection between indoor living and outdoor entertaining. Situated on a cul-de-sac in the highly desirable Allenbach Acres neighborhood, this home offers both privacy and comfort. The interior features freshly painted trim and millwork, a vaulted ceiling, new luxury carpet downstairs, hardwood floors, three bedrooms, two and a half bathrooms, and an office with built-ins. Enjoy the sunset from two levels of decks overlooking the backyard, ideal for relaxing evenings or weekend gatherings.Located in a community known for its top-rated schools, the home offers an ideal location with easy access to both Tanasbourne, Bethany Village, and the high-tech corridor. Shopping, dining, coffee shops, brew pubs, golf courses, parks, and trails are all just minutes away. Recent upgrades include interior trim paint, exterior paint (Fall 2025), roof (2015), hot water heater (2025), refrigerator and microwave (2023), Carrier heating and air conditioning (2022), and new Trex decking (2026). Wired for high speed fiber optics/ethernet. You’re going to love living here!
Listing Provided Courtesy of Janae Olsen, Premiere Property Group, LLC
173343270
SingleFamilyResidence
0 DOM
3
7840.8 SqFt
2.5
2188
1988
Washington
R1458416
Rock Creek
Five Oaks
Westview
Residential
SingleFamilyResidence
ALLENBACH ACRES NO.2, LOT 128, ACRES 0.18
Listing Provided Courtesy of Janae Olsen, Premiere Property Group, LLC
Mohan Realty Group data last checked: Jan 16, 2026 09:59 | Listing last modified Jan 16, 2026 09:00,
Source:
892
1296
0
2188
Appraisal
2188
1/Gas
3
2
1
2.5
Composition,Shingle
2, Attached
Stories2,Traditional
Driveway,OnStreet
2
1988
No
Brick, Cedar, LapSiding, WoodSiding
CrawlSpace
CrawlSpace
ConcretePerimeter
DoublePaneWindows,Vi
BeamedCeilings
Dishwasher, Disposal, FreeStandingGasRange, FreeStandingRefrigerator, GasAppliances, Granite, Microwave, Pa
Granite, HardwoodFloors, Laundry, Skylight, VaultedCeiling, WalltoWallCarpet, WasherDryer
Deck, Fenced, ToolShed, Yard
CentralAir
Gas
ForcedAir
PublicSewer
Gas
Gas
7118.47
1
200 / Annually
Cash,Conventional,FHA,VALoan
01-16-2026
No
No
0
0
Cash,Conventional,FHA,VALoan
$649,900
$649,900
Jan 16, 2026 09:00
Listing courtesy of Premiere Property Group, LLC.
The content relating to real estate for sale on this site comes in part from the IDX program of the RMLS of Portland, Oregon.
Real Estate listings held by brokerage firms other than this firm are marked with the RMLS logo, and
detailed information about these properties include the name of the listing's broker.
Listing content is copyright © 2019 RMLS of Portland, Oregon.
All information provided is deemed reliable but is not guaranteed and should be independently verified.
Mohan Realty Group data last checked: Jan 16, 2026 09:59 | Listing last modified Jan 16, 2026 09:00.
Some properties which appear for sale on this web site may subsequently have sold or may no longer be available.
Real Estate Agent
(503) 336-1515Showcasing timeless architecture, this home features a livable design and a seamless connection between indoor living and outdoor entertaining. Situated on a cul-de-sac in the highly desirable Allenbach Acres neighborhood, this home offers both privacy and comfort. The interior features freshly painted trim and millwork, a vaulted ceiling, new luxury carpet downstairs, hardwood floors, three bedrooms, two and a half bathrooms, and an office with built-ins. Enjoy the sunset from two levels of decks overlooking the backyard, ideal for relaxing evenings or weekend gatherings.Located in a community known for its top-rated schools, the home offers an ideal location with easy access to both Tanasbourne, Bethany Village, and the high-tech corridor. Shopping, dining, coffee shops, brew pubs, golf courses, parks, and trails are all just minutes away. Recent upgrades include interior trim paint, exterior paint (Fall 2025), roof (2015), hot water heater (2025), refrigerator and microwave (2023), Carrier heating and air conditioning (2022), and new Trex decking (2026). Wired for high speed fiber optics/ethernet. You’re going to love living here!