$80000
2 Bed
2 Bath
896 SqFt
25 DOM
Built: 1979
Real Estate Agent
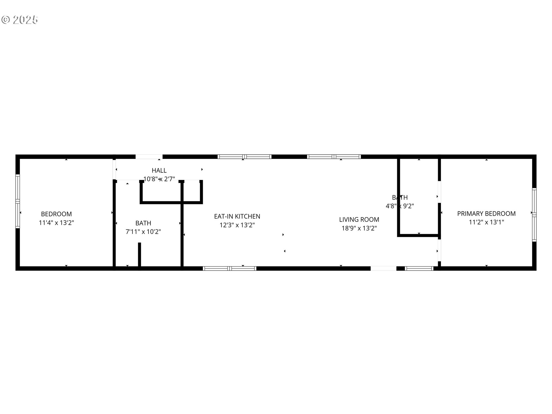
(503) 336-1515**OPEN SATURDAY 11/15 11AM-1PM** From the rolling hills of wine country and tucked away in beautiful Dundee, comes a beautifully updated home that shows true pride of ownership. This thoughtfully improved residence features two spacious bedrooms, each with its own full bathroom. One bathroom offers a stylish tile walk-in shower, while the other includes a tile shower and soaking tub combo, both accented by solid-surface countertops and tile flooring for a modern touch. The open-concept great room provides an inviting space that blends the living, dining, and kitchen areas seamlessly. The kitchen shines with updated cabinetry, solid-surface countertops, and stainless steel appliances, ready for everyday cooking or entertaining. Durable laminate flooring runs throughout the home, complementing the fresh interior and exterior paint. Enjoy year-round comfort with the updated heating and cooling system, and the energy efficiency of double-pane vinyl windows. Outdoor living is easy with large covered decks on both sides, ideal for relaxing or hosting friends. A detached storage shed and covered carport provide convenience and extra space for your belongings. Located in a well-maintained all-ages community, this home offers low space rent that includes sewer and water service. A perfect blend of value, comfort, and modern updates, this move in ready gem in Dundee is one you won’t want to miss!
Listing Provided Courtesy of Tim Kaelin, Coldwell Banker Professional
496294204
ManufacturedHomeinPark
25 DOM
2
2
896
1979
Yamhill
400382
Dundee
Chehalem Valley
Newberg
Residential
ManufacturedHomeinPark
KOZY 14X64 3142012 SD2833A
Listing Provided Courtesy of Tim Kaelin, Coldwell Banker Professional
Mohan Realty Group data last checked: Dec 26, 2025 00:45 | Listing last modified Dec 02, 2025 20:23,
Source: